Título: MFSI – 024
Año: 2022
Alcance: Proyecto y Dirección de Obra
Ubicación: Santa Isabel, Escobar, Provincia de Buenos Aires
Superficie: 210 m²

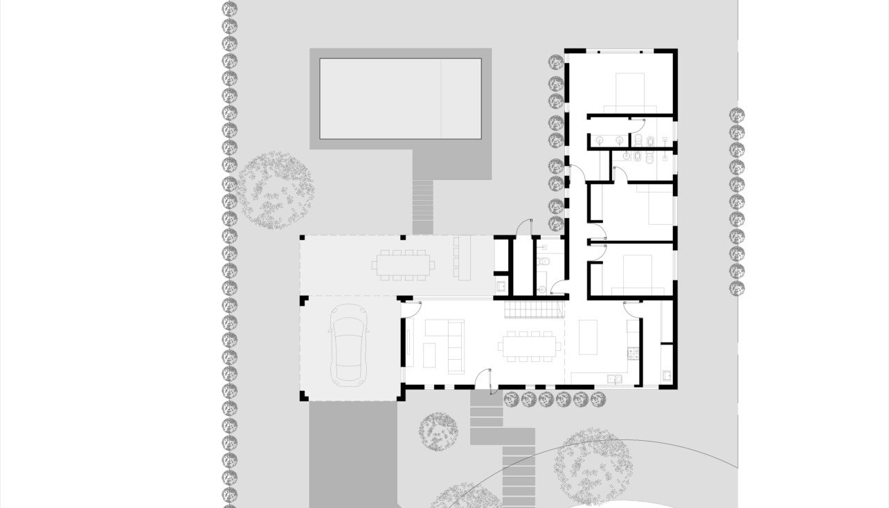
Memoria Descriptiva:
Ubicada al norte de la Ciudad Autónoma de Buenos Aires, esta casa de fin de semana establece un vínculo directo con su patio y entorno natural. Su diseño se organiza a partir de dos módulos intersectados a 90 grados, diferenciando claramente el área pública de la privada.

El primer módulo se caracteriza por su fluidez espacial, generada a través de variaciones en altura y transiciones entre el interior y el exterior. Desde el estar, el recorrido se extiende hacia el comedor y la cocina integrados, mientras que un playroom, ubicado sobre la cocina, balconea hacia el comedor, aportando dinamismo y continuidad visual.

Este núcleo social se expande hacia una galería cubierta, que funciona como nexo entre el interior y el paisaje, culminando en un jardín con piscina que refuerza la conexión con el exterior.